최선을다한 서비스로 고객 여러분께 만족감을 선사합니다.
모멘트팔길이가 넓어 저항휨강도가 큰 굽힘보강철근과 힘 균등 전달과 저항이 높은 미끄럼방지턱과 탄성소켓의 장치 요소를 하나의 Unit로 일체 제작한 경량 단위 표준모듈러장치나, 지압과 정착능력이 높은 앵카연결재를 상기 표준모듈러장치에 일체 제작한 경량 단위 특수모듈러장치를 단순히 말뚝에 삽입하거나 걸침으로서 조립된 케이지에 띠철근을 조립하여
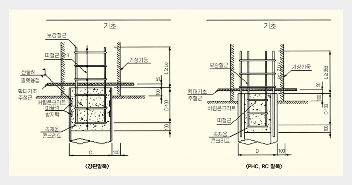
강결일체 보강체를 구성하는 모든 말뚝머리 보강에 적용하는 보강공법
건설 신기술 제703호
확대기초와 말뚝간의 결합조건은 내진설계를 고려함과 명확한 설계법 정립에 따라, 강결합으로 설계하는 것을 원칙으로 한다. 그 말뚝머리를 고정하는 이유는
· 수평하중에 의한 변위 저항능력 및 내진 안정성이 우수하고,
· 높은 부정정차수로 구조물의안정성과 연성을 확보할 수 있고,
· 경계조건이 명확하여 설계방법이 확립되었기 때문이다.
도로교 설계기준, 철도 설계기준, 구조물 기초 설계기준
· 말뚝과 확대기초의 결합부는 말뚝머리를 고정으로 설계하고, 결합부에 생기는 모든 능력에 대해 안전하도록 설계하여야 한다.
건축구조기준
· 모든 하중에 대해 충분히 응력을 전달할 수 있어야 한다. 건축물 3층이상 구조물은 내진설계를 적용하여야 한다
